+1 demo: Basic page

T7TPro

Telegram

API 610, OH3 Type Pump

Overview

Sectional View

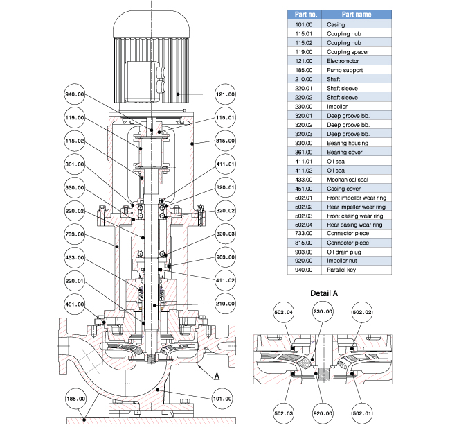
Exploded View

Performance

Documents

OH3 vertical in-line, single-stage, Semi-open & closed impellers, single suction, radially split centrifugal process pumps to API 610 (11th edition)

 

  • Flow rate (Max.):   1100 m3/hr
  • Differential head (Max.): 130 m
  • Speed (Max.): 3000 rpm
  • Suction pressure rating: Up to 20 bar g
  • MAWP: 40 bar g
  • Operating temperature: -15 ˚C to 400 ˚C
  • Design temperature: 180 ˚C
  • Application

    • Petroleum production and refining
    • High temperature service
    • Hydrocarbon booster
    • Gas industry service
    • Gas production
    • Liquefied Gas processing
    • Boiler circulation
    • Cooling tower pump
    • Water distribution
    • Synthetic fuels
    • Petroleum distribution
    • Petrochemical processing
    • Lube oil transfer and feed
    • General purpose
  • Benefits

    • 3mm corrosion allowance to API610
    • 2 x API allowable nozzle loads
    • Interchangeable Impeller and wear parts
    • All bearing housings are drilled and tapped for grease or oil lubrication.
    • The standard coupling guard meets API 610 requirements.
    • FEA was used to analyse the stand to assure that pumps operate well away from any natural frequencies per API610
    • Rigid shaft assembly limits deflection at seal faces to less than 0.002 in. (0.05 mm) under the most severe operating conditions
    • Pump & driver support stand surfaces are fully machined to assure flat mounting surfaces and alignment rigidity
    • In-Line Suction and Discharge Simplifies piping design and construction
    • Smooth operation with low vibration levels due to static & dynamic balancing of impeller and other rotating parts.
    • ISO-13709 (API 610) Table 6 seal chambers for improved seal life.
    • Fits for mechanical seals as per ISO 24109 / API 682 in cartridge design for easy installation and removal
    • Lower installation costs, reduced footprint & space saving design
  • Options

    • Materials variety according to API 610
    • Various types of cartridge mechanical seals available
    • Impeller trimmed to match the specified duty point
    • Several hydraulic systems per pump size
    • Grease or oil lubricated bearing bracket
    • A variety of instrumentation options are available for monitoring all key operating parameters (temperature, pressure, vibrations, etc.)

Alond Pumps Hydraulic Coverage

OH3 series

 

Other hydraulics on request

 

  • Catalogues

    OH3- Catalogue 2012

  • IOM

    OH3-Installation, Operation & maintenance Manual- 2010

  • Data-sheet Forms

    OH1-Compact Data-sheet

    OH1- API 610, 11th, Data-sheet